
Le Centre Hospitalier National d’Ophtalmologie des Quinze-Vingts est un établissement public de santé de référence en ophtalmologie et en enseignement universitaire, afin de mettre en conformité son unité et de répondre aux besoins.
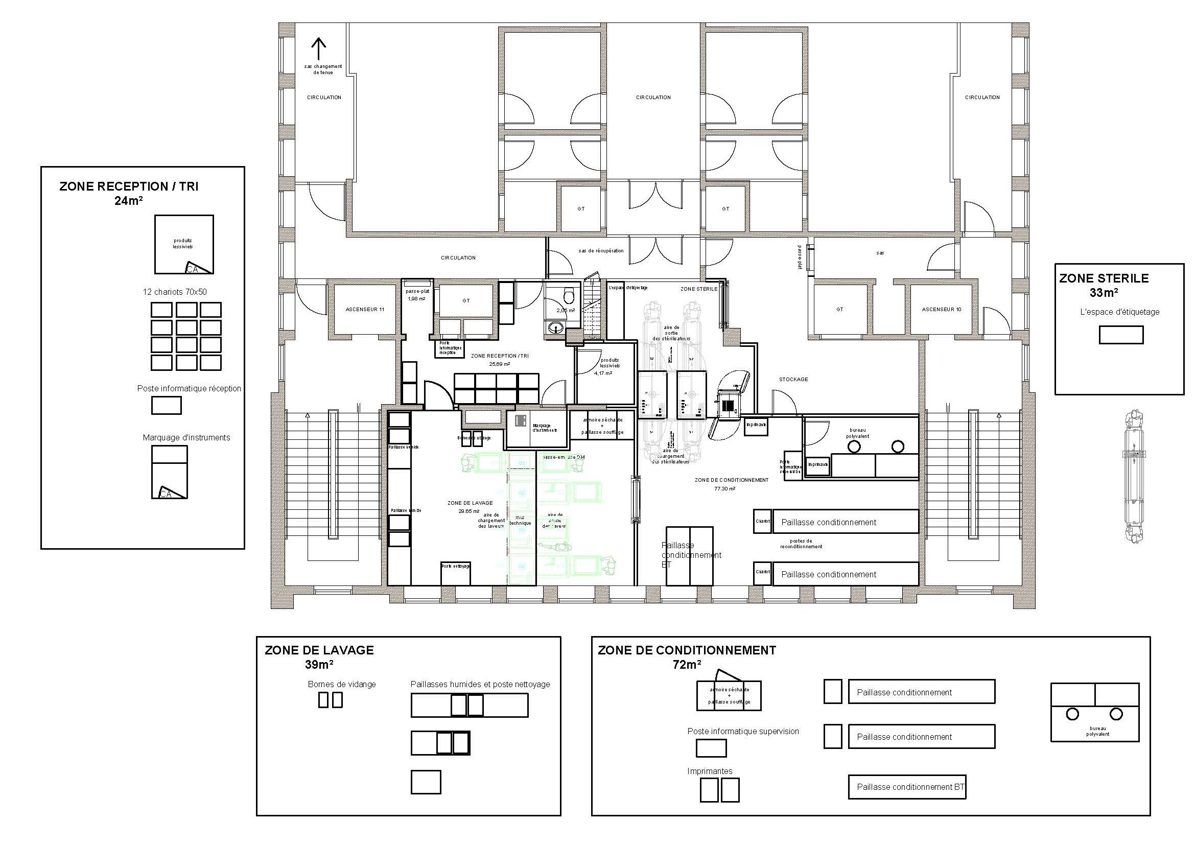
Face à la non-conformité et à l’exiguïté des anciens locaux, ainsi qu’au besoin de surfaces supplémentaires pour la chirurgie ambulatoire. Il a été décidé de réaliser en clé en main le projet visant à installer de manière pérenne une unité de stérilisation hospitalière sur une surface d’environ 250 m² SDO.
Ce projet a été réalisé en collaboration avec LSB et nos équipes BIOGuard Expertise et BIOGuard Solutions, pour garantir performance, conformité et innovation.
Entreprise responsable :BIOGuard Solutions by LSB
Mandataire :LSB
Co-traitants :Bioguard Expertise / Baticible / UNHI / Rovalec / Veolia
Montant BIOGuard :1439349 € HT
Montant total :2028029 € HT
Durée des travaux :En cours
Date de réception :En cours
Les étapes du projet
Étape 1 : Étude
- Définition / Recueil du besoin utilisateur
- Approche Flow Diagram
- Audit / Faisabilité / Conception (APS, APD) / Analyse de Risque
- Accompagnement auprès de l’ARS
- Qualification de Conception
Étape 2 : Usine
- Cloisons et chassis vitrés
- Faux plafonds
- Portes battantes
- Interloquage de portes et contrôle d’accès
- Paillasses humides
- Paillasses sèches
- Revêtements de sol
Étape 3 : Pose
Montage et installation sur site :
- Portes automatisées
- Interloquage de portes et contrôle d’accès
- Traitement étanchéité mur laveurs et mur stérilisateurs
- CFO / CFA
- Chauffage, ventilation, climatisation
- Plomberie
- Osmoseur et boucle eau osmosée
- Air comprimé moteur / air comprimé médical
- Luminaires
Étape 4 : Qualification
- Qualification & Installation
- Mise à gris
- Mise au point des installations
- Mise à blanc
- Qualification opérationnelle
Référentiels
- BPPH
- NFS 90351
- ISO 14644 – 4
- EN 17141